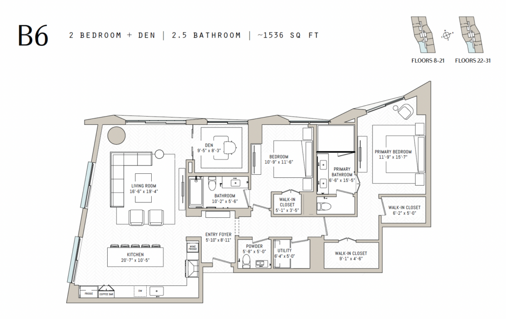
Perched between floors 8-31, the B6 residence masterfully orchestrates 1,536 square feet into a harmonious blend of luxury and functionality. This corner residence reimagines modern living through its innovative angular design, offering a sophisticated sanctuary for those who refuse to compromise between style and substance.

Inspired Layout
The heart of this home pulses around an expansive living area where the generously proportioned living room (16’8″ x 13’4″) harmoniously flows into a chef-caliber kitchen (20’7″ x 10’5″). The kitchen’s thoughtful design incorporates a dedicated coffee bar and premium appliance placement, creating an entertainer’s paradise that beckons both casual gatherings and sophisticated soirées.
Work & Life Balance
A private den (9’5″ x 8’3″) adjacent to the main living space offers versatility as a home office, library, or media room, while the split-bedroom design ensures unparalleled privacy. The primary retreat (11’8″ x 15’7″) features a spa-inspired ensuite bathroom with dual vanities and a generous walk-in closet (8’2″ x 5’0″). The secondary bedroom (10’8″ x 11’6″) mirrors this luxury with its own walk-in closet (5’1″ x 3’5″) and easy access to a full bathroom.
Distinctive Details
The residence’s thoughtful touches elevate everyday living:
- A grand entry foyer (5’10” x 8’11”) sets an immediate tone of sophistication
- A powder room offers convenience for guests
- A dedicated utility room (8’4″ x 5’0″) keeps life organized
- An additional walk-in closet (8’1″ x 4’6″) provides abundant storage
- Strategic window placement maximizes natural light and dramatic views
Perfect For:
- Urban professionals seeking a refined home office setup
- Design enthusiasts who appreciate architectural distinction
- Entertainers who demand flow and functionality
- Those seeking a primary residence with room to grow
The B6 residence doesn’t just offer space – it presents a canvas for elevated living, where every detail has been considered to create an unparalleled living experience. This is more than a home; it’s a statement of arrival.
If you are interested in learning more about the full range of floor plans or if you wish to request insider access to exclusive offerings, we invite you to reach out to us. Visit our website and fill out our contact form. We look forward to helping you find your perfect home at Cello Tower.